|
|
| MC series pulse bag filter |
Descriptions MC-II is a square pulse bag filter type in the MC-Ⅰ improved based on the modified form, which apart from being a high collection efficiency of type Ⅰ to deal with large air volume, stable performance, easy operation and maintenance, but also with results than I type, and not easy to plot powder, the characteristics of a wide range of applications, are widely used in food products, chemicals, building materials, pharmaceuticals, metallurgy and other industries recovery ventilation and dust removal. |
 | Technical parameters
| Specifications / Model |
MC24 |
MC36 |
MC48 |
MC60 |
MC72 |
MC84 |
MC96 |
MC120 |
| Filter area(m2 ) |
18 |
27 |
36 |
45 |
54 |
63 |
72 |
90 |
| Bag number (only) |
24 |
36 |
48 |
60 |
72 |
84 |
96 |
120 |
| Filtration velocity (m/s) |
20-40 |
20-40 |
20-40 |
20-40 |
20-40 |
20-40 |
20-40 |
20-40 |
Filter air volume (m3/h) |
1300-2600 |
1950-3900 |
2600-5200 |
3240-6480 |
3900-7800 |
4550-9100 |
5200-10500 |
6500- |
| The largest size |
Long |
1000 |
1400 |
1800 |
2200 |
2600 |
3000 |
3560 |
4360 |
| W × H |
1450×3700 |
1450×3850 |
1450×4100 |
| Cleaning device |
The number of pulse valves |
4 |
6 |
8 |
10 |
12 |
14 |
16 |
20 |
| Consumption of compressed air volume m3 |
0.07 -0.30 |
0.11 -0.40 |
0.15 -0.50 |
0.18 -0.60 |
0.22 -0.60 |
0.25 -0.90 |
0.29 -0.90 |
0.37 -0.90 |
Compressed air pressure (kg/cm3) |
5-7 | Installation diagram
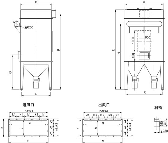
Main Dimensions
| Parameters |
MC24 |
MC36 |
MC48 |
MC60 |
MC72 |
MC84 |
MC96 |
MC120 |
| A |
1000 |
1400 |
1800 |
2200 |
2600 |
3000 |
3560 |
4360 |
| B |
1450 |
| C |
780 |
1180 |
1600 |
2000 |
2400 |
1400+1400 |
1670+1670 |
2080+2080 |
| D |
1230 |
| E |
3700 |
3850 |
4100 |
| F |
3500 |
3600 |
3850 |
| G |
1700 |
1750 |
2000 |
| H |
3040 |
3090 |
3300 |
| a |
476 |
576 |
876 |
876 |
1076 |
676 |
776 |
876 |
| b |
336 |
376 |
| c |
400 |
500 |
800 |
800 |
1000 |
600×2 |
700×1 |
800×2 |
| d |
260 |
300 300×2 |
| e |
576 |
576 |
876 |
876 |
1076 |
1276 |
1326 |
1436 |
| f |
276 |
376 |
| g |
500 |
500 |
800 |
800 |
1000 |
1200 |
1250 |
1360 |
| h |
200 |
300 |
k1×h1 k1×2 |
110×4 =440 |
108×5 =540 |
120×7 =840 |
120×7 =840 |
120×7+100×2 =1040 |
110×4+100×2 =640 |
110×5+95×2 =740 |
120×7 =840 |
| k2×n2 |
150×2=300 |
113.3×3=340 |
k3×n3 k3*2 |
108×5 =540 |
108×5 =540 |
120×7 =840 |
120×7 =840 |
120×7+ 100×2 =1040 |
124×10 =1240 |
120×9+105×2 =1290 |
120×10+ 100×2 =1400 |
| k4*n4 |
120×2=240 |
113.3×3=340 |
| Gray row in diameter butterfly valve |
150 |
150 |
150 |
150 |
150 |
200 |
200 |
200 | |
PDF Download
|
|